N 12 C
TipNazidna
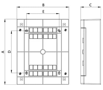
Dimenzije236 x 287 x 112
Broj modula12
Broj PE, N klema2x10
Boja vrata
Istaknute karakteristike
Razvodne kutije su opremljene svim potrebnim delovima za ugradnju:
- DIN šina
- Izolovana klema za uzemljenje i nulu
- Poklopac slobodnog prostora
- Pribor za montažu
- IP40 zaštitne kapice
- Uputstvo za upotrebu i montažu
* Dodatne kleme po zahtevu klijenta
Sadrži

Poklopac praznog prostora / PP

Izolovana klema, standardna
Kompatibilno

Izolovana klema, dupla

Izolovana klema prema / australijski standard

Izolovana klema, bezvijčana

Bravica sa ključem za razvodne kutije


